Bureaux - A LOUER - ANGERS

ANGERS ( 49000 )
×s
Bureaux  - ANGERS (49.017197) - photo-1
Bureaux  - ANGERS (49.017197) - photo-2
Bureaux  - ANGERS (49.017197) - photo-3
Bureaux  - ANGERS (49.017197) - photo-4
Bureaux  - ANGERS (49.017197) - photo-5
Bureaux  - ANGERS (49.017197) - photo-6
Exclusivité
Bureaux  - ANGERS (49.017197) - photo principale

Bureaux - A LOUER

ANGERS (49000)

71 448 euros HT/HC

393 m² - Bien Divisible

Disponible immédiatement

Réf : 49.017197

Nous contacter

NANTES - Entreprise et Commerce

34, RUE DE STRASBOURG

44002 NANTES

nous appeler
×

Je souhaite être contacté

Les champs marqués d'un * sont requis

Les sociétés du Groupe Giboire traitent vos données personnelles, en tant que responsables de traitement, pour répondre à votre demande et, sous réserve de votre consentement, pour vous adresser des messages commerciaux.

Pour en savoir plus sur votre droit d’accès, votre droit de rectification, votre droit d’opposition et vos autres droits ainsi que sur le traitement de vos données personnelles, consultez notre notice d’information accessible via ce lien : politique de confidentialité

Descriptif du bien

ANGERS / Gare Saint-Laud

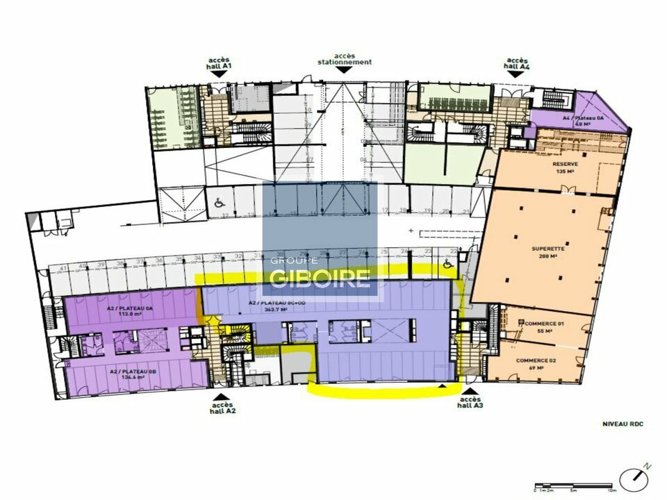
euros LOUER / euros VENDRE – GIBOIRE ENTREPRISE ET COMMERCE – BUREAUX de 393 m² divisibles à partir de 165 m² – ANGERS / Gare Saint-Laud

Situés dans le nouveau quartier Cours Saint-Laud, à 5 min à pied de la gare, à 30 min de NANTES et à 1h30 de PARIS en TGV, et 10 min en voiture de la rocade. Desservi par les transports en commun : arrêt de bus au pied du bâtiment avec passage de 5 lignes, station de Tramway « La Fayette » et « Les Gares » à 10 minutes à pied. Relié au centre-ville par la passerelle piétonne sur la voie ferrée.

Derniers plateaux de bureaux disponibles de 160 m² à 393 m², divisibles et livrés aménagés en open-space. (revêtement de sol, faux plafonds, luminaires, courant fort et sanitaires privatifs). Air rafraichi installé, et possibilité d’installer la climatisation.

Stationnement en sous-sol et parkings publics à proximité.

393 m²
Surface divisible
Ref : 49.017197

Les dépenses énergétiques

L’étiquette énergie d’un logement permet d’estimer sa consommation en énergie. Différents éléments sont pris en compte pour l’évaluer : la production de chauffage, d’eau chaude et les consommations électriques. Cet indice vous donne une indication sur les dépenses annuelles à prévoir. Le classement est reflété par une lettre de A à G, A désignant les biens les moins énergivores et G les plus consommateurs d’énergie.

Les informations sur les risques auxquels ce bien est exposé sont disponibles sur le site Géorisques : www.georisques.gouv.fr

DPE en cours de réalisation

Le quartier

découvrir
  • Sorties
  • Commerces
  • Écoles
  • Transports
  • Santé
Chargement de la carte
Vous souhaitez faire gérer votre bien ?

Nous prenons en charge la relation avec votre locataire au quotidien, et devenons son unique interlocuteur pour toute demande ou litige. Nous assurons l'appel des loyers et charges et veillons au respect des clauses du bail. Nous anticipons les étapes importantes du bail (renouvellement) afin de vous proposer les solutions adaptées à votre situation. Enfin, nous vous accompagnons dans le règlement des factures, impôts et charges liées à votre local professionnel ainsi que dans la déclaration de vos revenus fonciers

faire gérer